Powered by Smartsupp Prodej bytu 4+1 73 m², Toušeňská, Praha-Lhotka | NEXT REALITY STARS
Zpět Zpět na výpis nemovitostí

Prodej bytu 4+1 73 m², Toušeňská, Praha-Lhotka

Toušeňská, Praha Zobrazit na mapě Zobrazit na mapě

Stav

Prodáno

Typ

4+1

Obytná plocha

73 m²

Stav objektu

Dobrý

Stavba

Panelová

Vlastnictví

Osobní

8 400 000 Kč

Pohlídejte si cenu této nemovitosti Pohlídejte si cenu této nemovitosti

reo_watchdog_modal_header_title

bell

Pohlídejte si změny u této nemovitosti

Dáme vám vědět, ať už se změní cena nebo stav nemovitosti.

bell

O vaše data je u nás postaráno. Přečtěte si naše podmínky pro ochranu os. údajů.

Kalkulačka financování Kalkulačka financování

Spočítejte si, na kolik vás vyjde hypotéka

Spočítejte si, na kolik vás vyjde hypotéka

Spočítejte si, na kolik vás vyjde hypotéka

Nějaký zajímavý podnadpis

Více o této nemovitosti

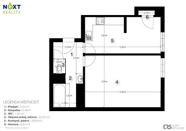
Nabízíme k prodeji světlý a prostorný byt 4+1 s lodžií o celkové ploše 83 m² v klidné a žádané lokalitě Praha – Lhotka, ulice Toušeňská. Byt se nachází v pečlivě udržovaném panelovém domě se zateplenou fasádou a novou střechou, s dobře fungujícím společenstvím vlastníků (SVJ). Nová plastová okna a zděné jádro zajišťují pohodlné a bezproblémové bydlení.
Byt nabízí praktické dispoziční uspořádání – čtyři světlé a prostorné pokoje, samostatnou kuchyň, koupelnu a WC, chodbu s vestavěnými skříněmi a zasklenou lodžii přístupnou z jednoho z pokojů. Součástí je i sklep v suterénu domu. Byt je v dobrém stavu a připraven k okamžitému nastěhování, případně nabízí možnost rekonstrukce a úprav podle vlastních představ.
Lokalita poskytuje klidné prostředí s výbornou občanskou vybaveností – školy, školky, obchody i restaurace jsou v docházkové vzdálenosti. Přímo za domem se nachází multifunkční dětské hřiště a venkovní stolní tenis. Velkou výhodou je také plánovaná výstavba stanice metra linky D (cca 500 m od domu), která výrazně zlepší dostupnost do centra města, přičemž nejbližší zastávka autobusu je od domu necelých 100 metrů. Bezproblémové parkování přímo u domu bez modrých zón.
Tento byt je perfektní kombinací prostorného, praktického a pohodlného bydlení s možností vlastních úprav, v klidné lokalitě s výbornou občanskou vybaveností a dopravní dostupností. Pokud hledáte nové bydlení nebo zajímavou investiční příležitost, tato nemovitost je pro Vás tou pravou volbou. S případným financováním vám rádi pomůžeme. Pro komunikaci uvádějte evidenční číslo zakázky N114260.

Lokalita

Obec

Praha

Ulice

Toušeňská

Informace o nemovitosti

Stav

Prodáno

Typ smlouvy

Prodej

Typ nemovitosti

Byt

Další informace

Typ

4+1

Obytná plocha

73 m²

Stav objektu

Dobrý

Stavba

Panelová

Vlastnictví

Osobní

Energetická náročnost budovy

G - Mimořádně nehospodárná

Sklep

Ano

Lodžie

Ano

Navigovat k nemovitosti Navigovat k nemovitosti

Máte zájem o tuto nemovitost?

Kontaktujte mě a domluvme se na prohlídce

Dejte nám vědět, s čím vám můžeme pomoct

Osobně s vámi projdeme každý detail

Preferovaný den prohlídky

Preferovaný čas prohlídky

Nejpozději do 24 hodin se ozveme nazpátek.

O vaše data je u nás postaráno. Přečtěte si naše podmínky pro ochranu os. údajů.

Děkujeme za váš zájem

Vaše informace jsme přijali a brzy se vám ozveme.

Váš požadavek byl úspěšně odeslán

Dejte nám vědět, s čím vám můžeme pomoct

Osobně s vámi projdeme každý detail

Podobné nemovitosti v naší nabídce

Mohlo by vás také zaujmout

Prodáno
Detail nemovitosti

Prodej bytu 1+1 56 m², Evropská, Praha-Dejvice

Ulice Evropská, Praha

9 000 000 Kč
Prodáno
Detail nemovitosti
Prodáno
Detail nemovitosti

Prodej bytu 2+kk 60 m², Věstonická, Praha-Zličín

Ulice Věstonická, Praha

7 400 000 Kč
Prodáno
Detail nemovitosti
Prodáno
Detail nemovitosti
Rezervováno
Detail nemovitosti

Prodej bytu 3+kk 80 m², Nepomuckých, Praha-Letňany

Ulice Nepomuckých, Praha

11 490 000 Kč
Prodáno
Detail nemovitosti

Prodej bytu 2+kk 41 m², Soudní, Praha-Nusle

Ulice Soudní, Praha

6 000 000 Kč
Prodáno
Detail nemovitosti

Prodej bytu 3+1 84 m², Pod dálnicí, Praha-Michle

Ulice Pod dálnicí, Praha

7 668 620 Kč
Prodáno
Detail nemovitosti
Top nabídka Top nabídka
Volný
Detail nemovitosti
Volný
Detail nemovitosti

Prodej bytu 2+1 71 m², U svobodárny, Praha-Libeň

Ulice U svobodárny, Praha

8 200 000 Kč
Realizováno
Detail nemovitosti
Prodáno
Detail nemovitosti
Realizováno
Detail nemovitosti

Prodej bytu 2+kk 52 m², Na výsledku I, Praha-Nusle

Ulice Na výsledku I, Praha

6 350 000 Kč
Realizováno
Detail nemovitosti
Realizováno
Detail nemovitosti
Realizováno
Detail nemovitosti
Realizováno
Detail nemovitosti
Komplexní právní servis

Komplexní právní servis

Realitní transakce vyžadují precizní právní zajištění, aby byl obchod bezpečný a bez komplikací. S NEXT REALITY STARS získáte kompletní právní servis, včetně smluvní dokumentace a advokátní úschovy, abyste měli jistotu, že je váš prodej či koupě v naprostém pořádku.

Česká firma

Česká firma

Jsme ryze česká společnost, která zná lokální trh do posledního detailu. Díky tomu rozumíme specifikům českého realitního prostředí a dokážeme klientům nabídnout služby šité na míru jejich potřebám.

Tradice od roku 2006

Tradice od roku 2006

Za téměř dvě dekády působení na trhu jsme pomohli tisícům klientů najít ideální bydlení nebo úspěšně prodat jejich nemovitosti. Dlouholetá zkušenost a stabilita společnosti jsou zárukou spolehlivosti a profesionálního přístupu.

Inzerce nemovitostí až na 100 serverech

Inzerce nemovitostí až na 100 serverech

Čím větší dosah, tím rychlejší prodej za nejlepší cenu. Vaši nemovitost inzerujeme na nejdůležitějších realitních portálech, což zajišťuje maximální viditelnost a oslovuje široké spektrum potenciálních kupců.

Moderní marketing

Moderní marketing

Využíváme efektivní online kampaně, sociální sítě i cílenou reklamu, abychom vaši nemovitost dostali do povědomí správných lidí. Díky tomu se prodejní proces zrychlí a vy máte jistotu, že se vaše nabídka neztratí v záplavě ostatních inzerátů.

Nadstandardní prezentace nemovitostí

Nadstandardní prezentace nemovitostí

Profesionální fotografie, video prohlídky, dronové záběry nebo 3D virtuální prohlídky – to vše dává vaší nemovitosti konkurenční výhodu. Perfektní vizuální prezentace přitahuje více zájemců a zvyšuje šanci na rychlý a výhodný prodej.

Odbornost a profesionalita

Odbornost a profesionalita

Každý obchod je pro nás závazkem k maximální kvalitě a důslednosti. Naši makléři pracují s aktuálními daty z trhu, aby vám poskytli přesné ocenění nemovitosti i strategii prodeje, která povede k optimálnímu výsledku.

Certifikovaní realitní makléři

Certifikovaní realitní makléři

Váš obchod povedou odborníci, kteří prošli certifikacemi a pravidelným školením v oblasti realitního práva, financí i vyjednávání. To vám dává jistotu, že spolupracujete s profesionály, kteří hájí vaše zájmy a dovedou vás k úspěšnému obchodu.