Powered by Smartsupp Prodej domu rodinný 144 m² pozemek 386 m², Na Příči, Mutějovice | NEXT REALITY STARS
Zpět Zpět na výpis nemovitostí

Prodej domu rodinný 144 m² pozemek 386 m², Na Příči, Mutějovice

Na Příči, Mutějovice Zobrazit na mapě Zobrazit na mapě

Stav

Volný

Typ

Rodinný

Obytná plocha

144 m²

Plocha pozemku

386 m²

Velikost

5 a více pokojů

Stav objektu

Novostavba

8 100 000 Kč

Pohlídejte si cenu této nemovitosti Pohlídejte si cenu této nemovitosti

Sledovat dostupnost

Upozornění

Pohlídejte si změny u této nemovitosti

Dáme vám vědět, ať už se změní cena nebo stav nemovitosti.

Upozornění

O vaše data je u nás postaráno. Přečtěte si naše podmínky pro ochranu os. údajů.

Kalkulačka financování Kalkulačka financování

Spočítejte si, na kolik vás vyjde hypotéka

Spočítejte si, na kolik vás vyjde hypotéka

Spočítejte si, na kolik vás vyjde hypotéka

Nějaký zajímavý podnadpis

Více o této nemovitosti

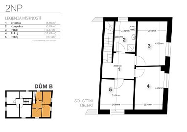
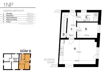
Představujeme vám nabídku prodeje novostavby rodinného domu v kraji chmele a výborného piva a to přímo v obci Mutějovice. Dům je postaven na pozemku o výměře 386 m² a splňuje všechny podmínky nízkoenergetického bydlení. Disponuje kvalitním zdivem, izolačními trojskly v oknech a teplovodním podlahovým vytápěním, jehož zdrojem je tepelné čerpadlo. Na střeše je připravena instalace fotovoltaických panelů a nechybí ani komín, který umožňuje připojení krbu či krbových kamen v obývacím pokoji. Zkrátka vše, co moderní bydlení vyžaduje. Dům je dispozičně řešen jako 5kk s celkovou podlahovou plochou 144 m², což poskytuje dostatek prostoru pro každého člena rodiny. Hlavním vchodem vstoupíte do prostorné chodby s místem pro úložné prostory, odkud se vchází do jednotlivých místností. V přízemí se nachází prostorný obývací pokoj s kuchyňským koutem a přímým výstupem na západně orientovanou zahradu s terasou, ideální pro trávení volného času s rodinou a přáteli. Dále je v přízemí pokoj, který lze využít jako pracovnu, nebo hostinský pokoj, koupelna s toaletou, sprchovým koutem, umyvadlem a prostorem pro pračku. Po schodišti vystoupáte do podkroví, kde se nacházejí tři prostorné ložnice a druhá koupelna se sprchovým koutem, umyvadlem, toaletou a prostorem pro pračku i sušičku. Dům bude kompletně dokončený v červnu 2026. Pozemek bude kompletně oplocený, zatravněný a zahrnuje terasu, parkovací stání, dvoukřídlou vjezdovou bránu i branku pro pěší. Mutějovice jsou obcí se skvělou občanskou vybaveností. Najdete zde mateřskou i základní školu, obchod, obecní úřad, poštu a řadu sportovišť. V okolí se nachází mnoho turistických cílů. Obec má dobré autobusové spojení s Prahou, Rakovníkem i okolními obcemi. Nájezd na dálnici D6 je vzdálen do 10 minut jízdy, přičemž na okraj Prahy se dostanete přibližně za 30 minut. Do Rakovníka dojedete zhruba za 15 minut. Pokud vás nabídka tohoto domu zaujala a nemáte vyřešený způsob financování kupní ceny, i s tím Vám rádi pomůžeme. Pro komunikaci uvadejte evidencni cislo zakazky N116733.
Bydlení Mutějovice

Tato nemovitost je součástí developerského projektu

Bydlení Mutějovice

Lokalita

Obec

Mutějovice

Ulice

Na Příči

Informace o nemovitosti

Stav

Volný

Typ smlouvy

Prodej

Typ nemovitosti

Dům

Další informace

Typ

Rodinný

Obytná plocha

144 m²

Plocha pozemku

386 m²

Velikost

5 a více pokojů

Stav objektu

Novostavba

Stavba

Cihlová

Typ domu

Patrový

Energetická náročnost budovy

B - Velmi úsporná

Parkování

Ano

Navigovat k nemovitosti Navigovat k nemovitosti

Máte zájem o tuto nemovitost?

Kontaktujte mě a domluvme se na prohlídce

firmy.cz
5
Hodnocení
google.cz
4.6
Hodnocení

Dejte nám vědět, s čím vám můžeme pomoct

Osobně s vámi projdeme každý detail

Preferovaný den prohlídky

Preferovaný čas prohlídky

Nejpozději do 24 hodin se ozveme nazpátek.

O vaše data je u nás postaráno. Přečtěte si naše podmínky pro ochranu os. údajů.

Děkujeme za váš zájem

Vaše informace jsme přijali a brzy se vám ozveme.

Váš požadavek byl úspěšně odeslán

Dejte nám vědět, s čím vám můžeme pomoct

Osobně s vámi projdeme každý detail

firmy.cz
5
Hodnocení
google.cz
4.6
Hodnocení

Podobné nemovitosti v naší nabídce

Mohlo by vás také zaujmout

Prodáno
Prodáno
Volný
Volný
Volný
Komplexní právní servis

Komplexní právní servis

Realitní transakce vyžadují precizní právní zajištění, aby byl obchod bezpečný a bez komplikací. S NEXT REALITY STARS získáte kompletní právní servis, včetně smluvní dokumentace a advokátní úschovy, abyste měli jistotu, že je váš prodej či koupě v naprostém pořádku.

Česká firma

Česká firma

Jsme ryze česká společnost, která zná lokální trh do posledního detailu. Díky tomu rozumíme specifikům českého realitního prostředí a dokážeme klientům nabídnout služby šité na míru jejich potřebám.

Tradice od roku 2006

Tradice od roku 2006

Za téměř dvě dekády působení na trhu jsme pomohli tisícům klientů najít ideální bydlení nebo úspěšně prodat jejich nemovitosti. Dlouholetá zkušenost a stabilita společnosti jsou zárukou spolehlivosti a profesionálního přístupu.

Inzerce nemovitostí až na 100 serverech

Inzerce nemovitostí až na 100 serverech

Čím větší dosah, tím rychlejší prodej za nejlepší cenu. Vaši nemovitost inzerujeme na nejdůležitějších realitních portálech, což zajišťuje maximální viditelnost a oslovuje široké spektrum potenciálních kupců.

Moderní marketing

Moderní marketing

Využíváme efektivní online kampaně, sociální sítě i cílenou reklamu, abychom vaši nemovitost dostali do povědomí správných lidí. Díky tomu se prodejní proces zrychlí a vy máte jistotu, že se vaše nabídka neztratí v záplavě ostatních inzerátů.

Nadstandardní prezentace nemovitostí

Nadstandardní prezentace nemovitostí

Profesionální fotografie, video prohlídky, dronové záběry nebo 3D virtuální prohlídky – to vše dává vaší nemovitosti konkurenční výhodu. Perfektní vizuální prezentace přitahuje více zájemců a zvyšuje šanci na rychlý a výhodný prodej.

Odbornost a profesionalita

Odbornost a profesionalita

Každý obchod je pro nás závazkem k maximální kvalitě a důslednosti. Naši makléři pracují s aktuálními daty z trhu, aby vám poskytli přesné ocenění nemovitosti i strategii prodeje, která povede k optimálnímu výsledku.

Certifikovaní realitní makléři

Certifikovaní realitní makléři

Váš obchod povedou odborníci, kteří prošli certifikacemi a pravidelným školením v oblasti realitního práva, financí i vyjednávání. To vám dává jistotu, že spolupracujete s profesionály, kteří hájí vaše zájmy a dovedou vás k úspěšnému obchodu.