Powered by Smartsupp Pronájem komerčních prostor kanceláře 72 m², Nádražní, Starý Plzenec | NEXT REALITY STARS
Zpět Zpět na výpis nemovitostí

Pronájem komerčních prostor kanceláře 72 m², Nádražní, Starý Plzenec

Nádražní, Starý Plzenec Zobrazit na mapě Zobrazit na mapě

Stav

Realizováno

Typ

Kanceláře

Obytná plocha

72 m²

Stav objektu

Dobrý

Stavba

Cihlová

Typ domu

Patrový

7 000 Kč

Pohlídejte si cenu této nemovitosti Pohlídejte si cenu této nemovitosti

reo_watchdog_modal_header_title

bell

Pohlídejte si změny u této nemovitosti

Dáme vám vědět, ať už se změní cena nebo stav nemovitosti.

bell

O vaše data je u nás postaráno. Přečtěte si naše podmínky pro ochranu os. údajů.

Kalkulačka financování Kalkulačka financování

Spočítejte si, na kolik vás vyjde hypotéka

Spočítejte si, na kolik vás vyjde hypotéka

Spočítejte si, na kolik vás vyjde hypotéka

Nějaký zajímavý podnadpis

Více o této nemovitosti

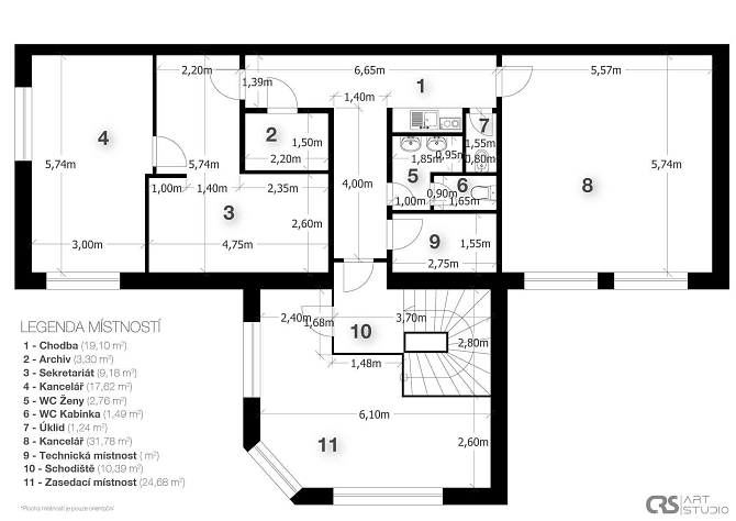
Exkluzivně nabízíme k pronájmu prostorné, klimatizované kanceláře č. 3, 4 o celkové velikosti 45 m², které se nacházejí ve 2. nadzemním podlaží administrativní budovy ve Starém Plzenci. Na patře je k dispozici toaleta, archiv, úklidová místnost a kuchyňka. Nájemné 7.000 Kč/měs. + DPH, poplatky za energie, vodu a vytápění paušálně 3.250 Kč/měs. + DPH, kauce 14.000 Kč, provize RK 5.000 + DPH. Parkování je možné přímo před budovou na zpevněné ploše. Budova se nachází nedaleko vlakové zastávky Starý Plzenec, tudíž je zajištěna velice dobrá dopravní dostupnost, jak vlakem, tak MHD. V případě zájmu je možné ke kancelářím pronajmou také nevytápěné skladovací prostory o výměře 130m2. Pro komunikaci uvádějte evidenční číslo zakázky N116083.

Lokalita

Obec

Starý Plzenec

Ulice

Nádražní

Informace o nemovitosti

Stav

Realizováno

Typ smlouvy

Pronájem

Typ nemovitosti

Komerční

Další informace

Typ

Kanceláře

Obytná plocha

72 m²

Stav objektu

Dobrý

Stavba

Cihlová

Typ domu

Patrový

Parkování

Ano

Navigovat k nemovitosti Navigovat k nemovitosti

Máte zájem o tuto nemovitost?

Kontaktujte mě a domluvme se na prohlídce

Bc. Monika Burgrová

Ředitel kanceláře,<BR>Realitní makléř senior

reo_broker_phone +420 606 145 162 reo_broker_email monika.burgrova@nextreality.cz
firmy.cz
5
Hodnocení
google.cz
5
Hodnocení

Dejte nám vědět, s čím vám můžeme pomoct

Osobně s vámi projdeme každý detail

Preferovaný den prohlídky

Preferovaný čas prohlídky

Nejpozději do 24 hodin se ozveme nazpátek.

O vaše data je u nás postaráno. Přečtěte si naše podmínky pro ochranu os. údajů.

Děkujeme za váš zájem

Vaše informace jsme přijali a brzy se vám ozveme.

Váš požadavek byl úspěšně odeslán

Dejte nám vědět, s čím vám můžeme pomoct

Osobně s vámi projdeme každý detail

Bc. Monika Burgrová

Ředitel kanceláře,<BR>Realitní makléř senior

reo_broker_phone +420 606 145 162 reo_broker_email monika.burgrova@nextreality.cz
firmy.cz
5
Hodnocení
google.cz
5
Hodnocení

Podobné nemovitosti v naší nabídce

Mohlo by vás také zaujmout

Komplexní právní servis

Komplexní právní servis

Realitní transakce vyžadují precizní právní zajištění, aby byl obchod bezpečný a bez komplikací. S NEXT REALITY STARS získáte kompletní právní servis, včetně smluvní dokumentace a advokátní úschovy, abyste měli jistotu, že je váš prodej či koupě v naprostém pořádku.

Česká firma

Česká firma

Jsme ryze česká společnost, která zná lokální trh do posledního detailu. Díky tomu rozumíme specifikům českého realitního prostředí a dokážeme klientům nabídnout služby šité na míru jejich potřebám.

Tradice od roku 2006

Tradice od roku 2006

Za téměř dvě dekády působení na trhu jsme pomohli tisícům klientů najít ideální bydlení nebo úspěšně prodat jejich nemovitosti. Dlouholetá zkušenost a stabilita společnosti jsou zárukou spolehlivosti a profesionálního přístupu.

Inzerce nemovitostí až na 100 serverech

Inzerce nemovitostí až na 100 serverech

Čím větší dosah, tím rychlejší prodej za nejlepší cenu. Vaši nemovitost inzerujeme na nejdůležitějších realitních portálech, což zajišťuje maximální viditelnost a oslovuje široké spektrum potenciálních kupců.

Moderní marketing

Moderní marketing

Využíváme efektivní online kampaně, sociální sítě i cílenou reklamu, abychom vaši nemovitost dostali do povědomí správných lidí. Díky tomu se prodejní proces zrychlí a vy máte jistotu, že se vaše nabídka neztratí v záplavě ostatních inzerátů.

Nadstandardní prezentace nemovitostí

Nadstandardní prezentace nemovitostí

Profesionální fotografie, video prohlídky, dronové záběry nebo 3D virtuální prohlídky – to vše dává vaší nemovitosti konkurenční výhodu. Perfektní vizuální prezentace přitahuje více zájemců a zvyšuje šanci na rychlý a výhodný prodej.

Odbornost a profesionalita

Odbornost a profesionalita

Každý obchod je pro nás závazkem k maximální kvalitě a důslednosti. Naši makléři pracují s aktuálními daty z trhu, aby vám poskytli přesné ocenění nemovitosti i strategii prodeje, která povede k optimálnímu výsledku.

Certifikovaní realitní makléři

Certifikovaní realitní makléři

Váš obchod povedou odborníci, kteří prošli certifikacemi a pravidelným školením v oblasti realitního práva, financí i vyjednávání. To vám dává jistotu, že spolupracujete s profesionály, kteří hájí vaše zájmy a dovedou vás k úspěšnému obchodu.